

翻車機干霧除塵系統
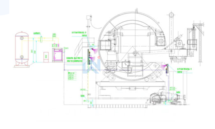
翻車機的微米級干霧抑塵系統由水箱、多級過濾恒壓供水站、空氣壓縮機、儲氣罐、微米級干霧抑塵主機、干霧箱控制器、噴霧箱、霧化管道、集中控制系統、配電箱等組成。 在翻車機傾翻側上面安裝5套ST2-7-60干霧箱總成,1套STK-A干霧箱控制器,1套STK-W干霧箱控制器,在傾翻側下面安裝3套ST2-7-60干霧箱總成,1套STK-A干霧箱控制器,1套STK-W干霧箱控制器,在背翻側設計安裝6套ST2-7-60干霧箱總成和1套SKT-A干霧箱控制器、1套SKT-W干霧箱控制器,干霧箱總成噴霧時間30s,周期2min。

翻車機指一種用來翻卸鐵路敞車散料的大型機械設備??蓪⒂熊壾囕v翻轉或傾斜使之卸料的裝卸機械,適用于運輸量大的港口和冶金、 煤炭、 熱電等工業部門,翻車機在工作時沒法進行密封,在敞開的環境下很容易產生粉塵,并且翻車機一般體型較大,工作時翻車機會帶動氣流,這是會產生大量的粉塵,這些粉塵在敞開的環境下會很快向外擴散,造成廠區污染,且影響工人正常工作。

翻車機在傾卸物料時,粉塵與粉塵、粉塵與翻車機之間產生碰撞和擠壓,半封閉空間中的空氣波動,產生運動,粉塵剪切壓縮造成塵化。物料在空氣中以一定的速度運動時,能帶動周圍空氣隨其一起流動,這部分空氣稱為誘導空氣。誘導空氣又會卷吸一部分粉塵,隨空氣一起流動,產生誘導塵化原因。長方體的列車車廂,在翻車過程中,會繞某一軸隨翻車機一起轉動,車廂的兩個側面和地面好像三面扇子,繞軸做旋轉運動,因而會在車廂周圍產生一股旋轉氣流,這股氣流會攜帶下落過程中的粉塵一起運動,產生塵化。這些粉塵會對廠區環境造成影響,因此需要相應的除塵設備進行除塵。

水箱容量根據現場情況來定,一般從4立方-10立方,可以采用連續供水或者定時定點供水。多級過濾恒壓供水站將水箱內的供水多級過濾后,通過水泵加壓,保證壓力恒定,輸送至干霧主機內??諝鈮嚎s機產生壓縮空氣,經過儲氣罐緩沖,輸送至干霧主機內。干霧主機對供水和供氣進行檢測調節,按照設定的壓力和流量輸送至各個干霧箱。

